Why 520x520 cubits
Sep. 22nd, 2017 04:10 pmIn general, I advise you to check all the verses where there is a description of the Temple, according to the Masoretic text. Because all translations of the Bible have a distortion of meaning, sometimes more, sometimes less. Occasionally, there are direct mistakes in the translations. Sometimes you have to look at variants of the Masoretic text. For example, about 10 steps of the staircase in front of the entrance to the House of Sanctuary.
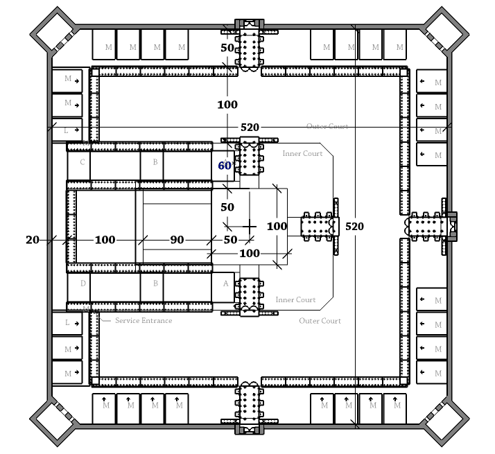
The center of the temple complex is in the middle of the square in front of the House. This square has a size of 100 by 100 cubits. The center of the temple complex is the center of the altar.
If you move from any gate in the direction of the altar, then from the inner surface of the wall, which is located on all sides of the temple complex, you can measure the sequence of sizes:
50 cubits - the length of the gate building, and exactly the same width at the pavement, on which 30 rooms are located. This size is indicated in the prophecy of Ezekiel.
100 cubits - the size of the outer courtyard area, from the gate to the gate of the inner court. This size is indicated in the prophecy of Ezekiel.
60 cubits is the gap between the outer fence of the inner court and the square that is located in front of the facade of the House of Sanctuary and which has a size of 100 by 100 cubits. This size is missing from the prophecy of Ezekiel. How did I get this size?
I proceeded from the fact that the dimensions from the center to the line of the outer wall are the same in all directions.
If in three directions we can not restore a complete chain of sizes, then such a complete chain of sizes is from the side of the western wall.
So, we go from the center, where the altar is located, in the direction to the west:
50 cubits - the distance from the center of the temple complex to the facade of the House of Sanctuary, 1/2 from 100 cubits. (40:47)
90 cubits is the length of the House of the Sanctuary (without the rear porches). (41:12)
100 cubits is the size of the space behind the House of Sanctuary. (42:8)
20 cubits - (42:3)

50+90+100+20=260 cubits
260 - (50+100+50) = 60 cubits
We found the missing size.
The total internal size of the temple complex is 520x 520 cubits (excluding kitchens).
The center of the temple complex is in the middle of the square in front of the House. This square has a size of 100 by 100 cubits. The center of the temple complex is the center of the altar.
If you move from any gate in the direction of the altar, then from the inner surface of the wall, which is located on all sides of the temple complex, you can measure the sequence of sizes:
50 cubits - the length of the gate building, and exactly the same width at the pavement, on which 30 rooms are located. This size is indicated in the prophecy of Ezekiel.
100 cubits - the size of the outer courtyard area, from the gate to the gate of the inner court. This size is indicated in the prophecy of Ezekiel.
60 cubits is the gap between the outer fence of the inner court and the square that is located in front of the facade of the House of Sanctuary and which has a size of 100 by 100 cubits. This size is missing from the prophecy of Ezekiel. How did I get this size?
I proceeded from the fact that the dimensions from the center to the line of the outer wall are the same in all directions.
If in three directions we can not restore a complete chain of sizes, then such a complete chain of sizes is from the side of the western wall.
So, we go from the center, where the altar is located, in the direction to the west:
50 cubits - the distance from the center of the temple complex to the facade of the House of Sanctuary, 1/2 from 100 cubits. (40:47)
90 cubits is the length of the House of the Sanctuary (without the rear porches). (41:12)
100 cubits is the size of the space behind the House of Sanctuary. (42:8)
20 cubits - (42:3)

50+90+100+20=260 cubits
260 - (50+100+50) = 60 cubits
We found the missing size.
The total internal size of the temple complex is 520x 520 cubits (excluding kitchens).